Používame cookies

Súbory cookie a ďalšie technológie sledovania používame na zlepšenie vášho zážitku z prehliadania našich webových stránok, na to, aby sme vám zobrazovali prispôsobený obsah a cielené reklamy, na analýzu návštevnosti našich webových stránok a na pochopenie toho, odkiaľ naši návštevníci prichádzajú. Viac info

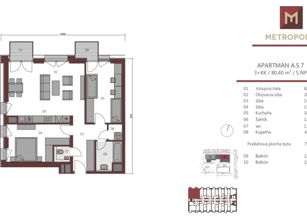
FRANK ZICHER - Predávame 3 izbový apartmán s 2 balkónmi v skolaudovanom projekte METROPOLIS v Downtowne, BA.I.

  • Exkluzívna ponuka

Popis nehnuteľnosti

Realitná kancelária FRANK ZICHER ponúka na predaj 3 izbový apartmán s 2 balkónmi v skolaudovanom rezidenčnom projekte METROPOLIS v centre nového downtownu na Bottovej ulici, Staré mesto.

Celková výmera je 83,1 m2 (výmera apartmánu 75,03 m2 + balkóny 5,26 + sklad 2,81 m2)

Apartmán sa nachádza na 5. nadzemnom podlaží zo 16tich vo veži A.

Orientácia je na západ a severozápad

K apartmánu je alokované aj garážové státie, a sklad o výmere 2,81 m2.

Projekt Metropolis je energeticky efektívny (trieda A0) s vysokým štandardom vybavenia a modernými technológiami.

Byt sa predáva v kvalitnom štandarde. K dispozícii vieme poskytnúť vypracovaný návrh kuchynskej linky a vstavaného nábytku od interiérového štúdia.
 

ŠTANDARD a TECHNOLÓGIE:
- Stropné chladenie
- Stropné kúrenie
- Rekuperácia

- Hliníkové okná s izolačným trojsklom
- Hliníkové el. ovládané exteriérové žalúzie
- Drevené bezfalcové dvere
- Drevené parkety
- Kvalitné talianske obklady a dlažby
- Štandardom sú batérie Hansgrohe a sanita Duravit

- V lobby sa nachádza recepcia a vo vnútrobloku nájdete detské ihrisko a parčík. 
 

Lokalita v ktorej sa projekt nachádza je v pešej dostupnosti historického centra, nábrežia Dunaja, OC NIVY aj OC EUROVEA a na okolí je množstvo reštaurácií, obchodov, inštitúcií, divadiel, administratívnych centier, škôl, škôlok či športovísk. Výborné napojenie na obchvat aj verejnú dopravu.

Priamo v Metropolise sa na 2 podlažiach nachádzajú obchodné priestory, ktoré ponúknu základnú vybavenosť už v rámci samotného projektu.

Možnosť financovať apartmán cez hypotekárny úver, rovnako je možné prihlásenie trvalého pobytu.
 

CENA: apartmán 409.900 EUR + garážové státie 42.000 EUR + sklad 8000 EUR

© Text a fotografie sú autorským dielom a majetkom realitnej kancelárie FRANK ZICHER

Bližšie informácie

Status:
aktívne
Vlastníctvo:
osobné
Úžitková plocha:
83.1 m2
Skladová plocha:
2.81 m2
Stav:
novostavba
Počet izieb:
3
Energetický certifikát:
A
Energetická náročnosť budovy:
Nízkoenergetický
Balkón:
áno
Garáž:
áno
Pivnica:
áno
Sklad:
áno
Výťah:
áno
Rok výstavby:
2024
Rok kolaudácie:
2025
Počet poschodí od prízemia vyššie:
16
Pozícia:
vyššie poschodie
Poschodie:
5
Plocha balkóna:
5.26 m2
Počet balkónov:
2
Počet garáží:
1
Plocha garáže:
14 m2
Pivnica plocha:
2.81 m2
Počet pivníc:
1
Inžinierske siete:
áno
Optická sieť:
áno

Hypotekárna kalkulačka

Nehnuteľnosť na mape

409 900 € garážové státie 42.000 EUR, sklad 8000 EUR
Interné ID: mama21
Ulica: Bottova 6
Obec: Bratislava-Staré Mesto
Okres: Bratislava I
Kraj: Bratislavský kraj
Druh: Byty
Typ: Predaj
Typ bytu: 3-izbový byt

Radi Vám poradíme